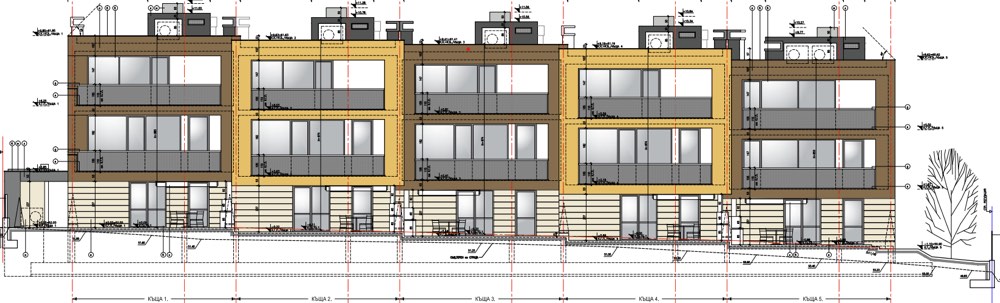
5 модерни редови къщи — твой дом с перспектива
За проекта
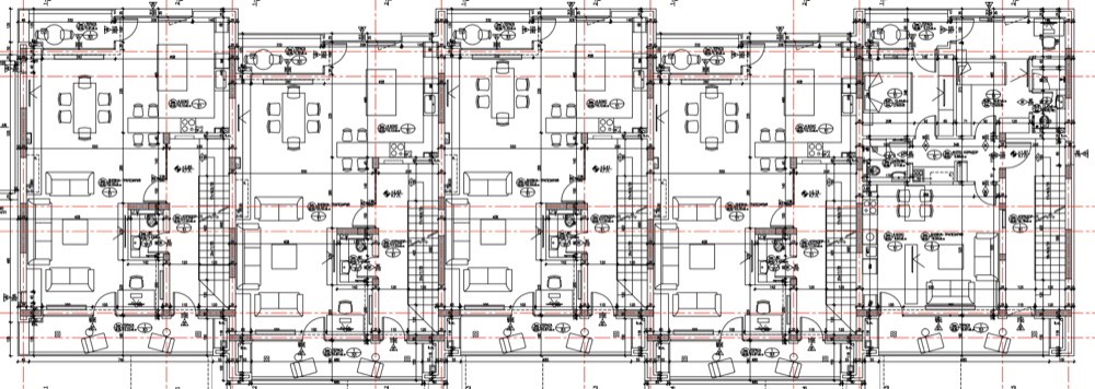
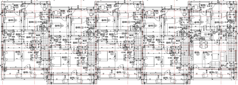
Domum Regianum е архитектурен ансамбъл от пет просторни редови къщи с южно изложение, с площ от между 329 кв.м и 337 кв.м, разпределени в три етажа. Разположени в тих квартал на град Козлодуй, къщите комбинират съвременен дизайн, устойчиво строителство и функционалност.
📐 Архитектурна концепция
- Комплексът включва 5 триетажни редови къщи (Къща 1, 2, 3, 4 и 5)
- Всяка къща разполага с гараж за две паркоместа
- Източно-западно изложение
- Индивидуален достъп към прилежащ двор от първи (приземен) етаж
- Максимална височина на застрояване: 9.96 м (±0.00 = 52.00)
- Свободно стоящи спрямо съседните УПИ
- Достъп чрез вътрешна алея откъм улицата
- В южната част на имота – едноетажна сграда КПП за охрана и склад
🏠 Разпределение по къщи
Къща 1 – Къща 4
- 1-ви етаж: входна площадка с антре-коридор-стълбище, WC, гараж с 2 паркоместа, домакинско помещение, 2 склада, тераса за барбекю и прилежаща част от двора
- 2-ри етаж (дневна зона): коридор-стълбище, WC, дневна-трапезария, кухненски бокс, 2 тераси
- 3-ти етаж (нощна зона): антре-стълбище, 3 спални (всяка с баня/WC), дрешник (към източна спалня), 2 тераси
- Покрив: ревизионен достъп с подвижна падаща стълба
Къща 5
- 1-ви етаж: входна площадка с антре-коридор-стълбище, WC, гараж с 2 паркоместа, домакинско помещение, 3 склада, тераса за барбекю и прилежаща част от двора
- 2-ри етаж (фамилна зона): коридор-стълбище, антре-коридор, баня/WC, дневна-трапезария, кухненски бокс, 2 спални, баня/WC към северната спалня, 2 тераси
- 3-ти етаж (гостна зона): антре-стълбище, антре-коридор, баня/WC, дневна-трапезария, дрешник, кухненски бокс, 2 спални, баня/WC към северната спалня, 2 тераси
- Покрив: ревизионен достъп с подвижна падаща стълба
Контролно-пропускателен пункт (КПП)
- Помещение за охрана
- WC
- Склад за градински инвентар
🧱 Конструкция и материали
- Монолитна стоманобетонна носеща конструкция
- Плосък стоманобетонен покрив с топло- и хидроизолации
- Възможност за озеленяване на покрива и инсталация на фотоволтаици
- Всяка къща разполага със собствена дворна зона, достъпна директно от приземния етаж
Галерия
Контакти
Свържете се с нас за допълнителна информация или оглед:
- Email: info@domum-regianum.homes
- Адрес: град Козлодуй